清遠市省職教城大學東路消防站項目社會穩定風險分析征求公眾意見的公示
發布時間:2023.07.18
尊敬的各位公眾:
按照中共中央辦公廳、國務院辦公廳《關于加強新形勢下重大決策社會穩定風險評估機制建設的意見》(中辦發〔2021〕11號)、省委辦公廳、省政府辦公廳印發《關于加強新形勢下重大決策社會穩定風險評估工作的若干措施》的通知(粵辦發〔2021〕25號)等相關規定,現將清遠市省職教城大學東路消防站項目的基本情況予以公示。在公示期間,歡迎各界人士來電、來信、來訪的形式反映情況,發表看法和意見。
一、項目建設背景
為完善清遠市消防基礎設施配套的需要,提升當地消防救援水平,保障人民生命財產安全,根據市政府工作會議紀要《省職教城、燕湖新城4個消防站項目建設協調會議紀要》(〔2022〕100號)及《清遠市省職教城、燕湖新城4個消防站項目建設推進會議紀要》(〔2022〕75號)文件精神,提出建設清遠市省職教城大學東路消防站項目。
二、項目基本情況
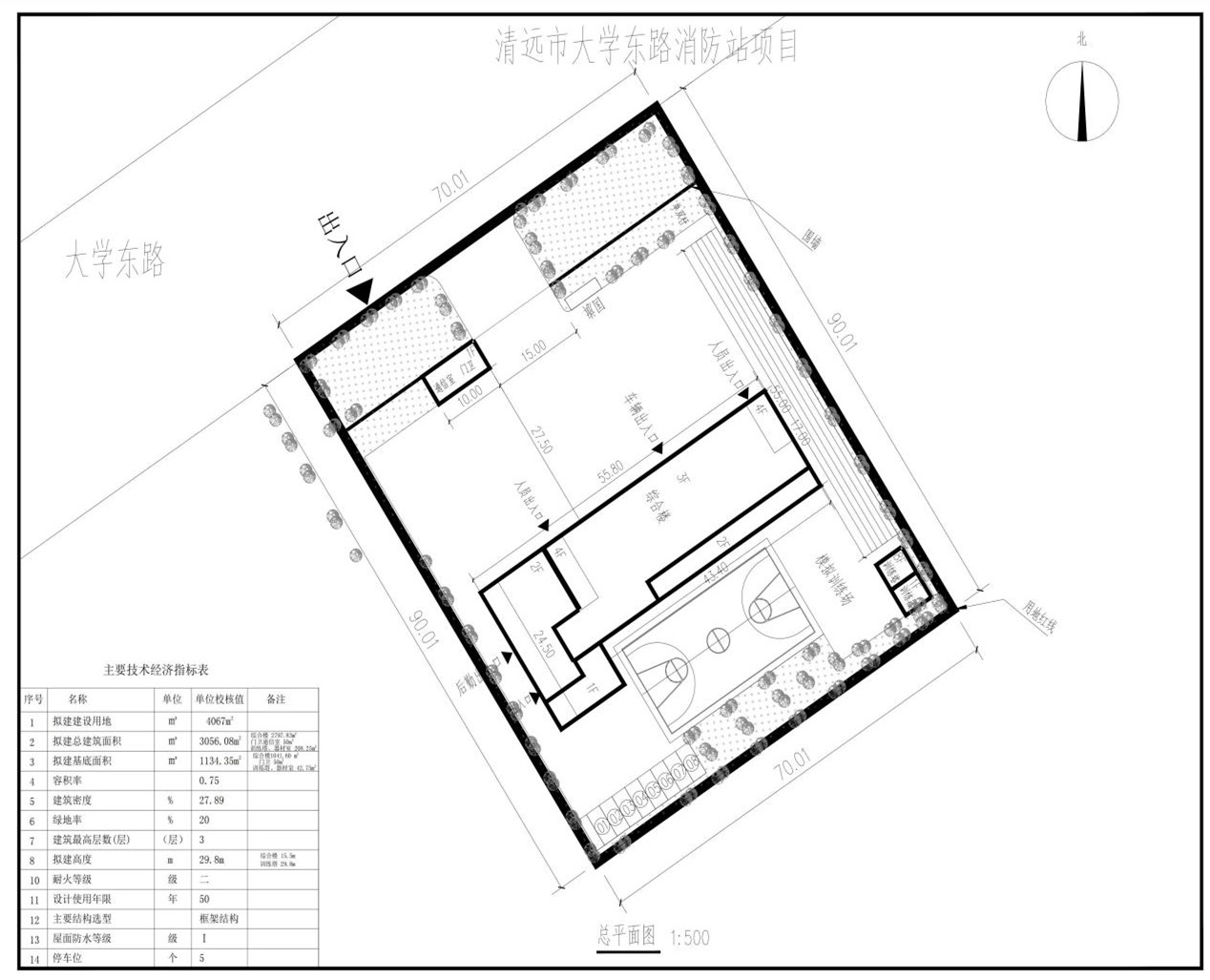
本項目為二級消防站建設項目,占地面積約3800㎡,建筑面積2696.08㎡,主要建設內容為:消防站綜合樓、訓練塔及器材室、門衛通信室各1棟及相關的配套設施。
項目總平面布置見圖1。
項目本次新建工程總投資約5020.88萬元。資金來源為財政資金。
項目建設期22月。
三、建設地點
清遠市清城區大學東路與蓮蟠路交界處。
具體位置見圖2。
四、征求公眾意見范圍及主要事項
公示對象為擬建項目建設區域內及可能受項目建設影響的村民、企事業單位和其他有關個人和組織。
征求可能受項目建設影響的公眾對項目建設的態度、意見、建議以及對本次社會穩定風險公眾調查工作的建議。
五、提出意見及建議的方式和期限
公示時間:2023年7月18日至2023年7月27日,公眾可在公示期間以實名方式向社會穩定風險報告編制單位提出書面意見。
社會穩定風險報告編制單位:廣州市國際工程咨詢有限公司
聯系人:古工
聯系電話:020-87376699-125
E-mail:gqy@giecc.com.cn
地址:廣州市越秀區寺右新馬路111號五羊新城廣場10樓
廣州市國際工程咨詢有限公司
2023年7月18日

圖1大學東路消防站平面布置圖

圖2項目建設地點示意圖